SAINT MARTIN DU VAR MAISON A ETAGE DE 110 M2 SUR UN TERRAIN DE 1129 M2

Maisons contemporaines
SAINT MARTIN DU VAR MAISON A ETAGE DE 110 M2 SUR UN TERRAIN DE 1129 M2
SAINT MARTIN DU VAR MAISON A ETAGE DE 110 M2 SUR UN TERRAIN DE 1129 M2
SAINT MARTIN DU VAR MAISON A ETAGE DE 110 M2 SUR UN TERRAIN DE 1129 M2
SAINT MARTIN DU VAR MAISON A ETAGE DE 110 M2 SUR UN TERRAIN DE 1129 M2
SAINT MARTIN DU VAR MAISON A ETAGE DE 110 M2 SUR UN TERRAIN DE 1129 M2
SAINT MARTIN DU VAR MAISON A ETAGE DE 110 M2 SUR UN TERRAIN DE 1129 M2
Superficie : 1129 m2
Prix : 575000 €
Ville : SAINT MARTIN DU VAR

La société de construction de villas individuelles : LES BASTIDES / TRABECO vous propose une Bastide au style néo contemporain neuf aux dernières normes RE2020 sur un secteur recherché de la commune de Saint Martin du Var.
Nous sommes ravis de vous présenter cette villa disposant de 5 pièces d'une superficie de 110 m² avec vue panoramique bénéficiant d'un emplacement d'exception dans Saint-Martin-du-Var (06670).

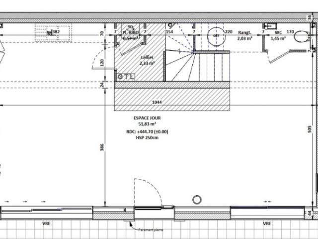
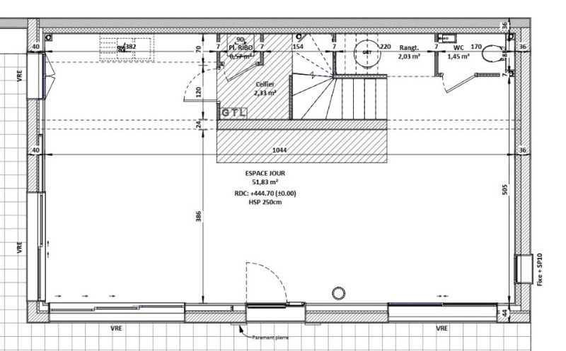
Sur un terrain de 1 129 m2 complanté d'oliviers centenaires, cette villa lumineuse de 110 m2 est composée au RDJ d'un grand séjour / salle à manger / cuisine à l'américaine en open space avec cellier attenant à la cuisine et un WC indépendant. Une grande suite parentale composée d'un dressing et d'une salle d'eau viendront complétés cette chambre.
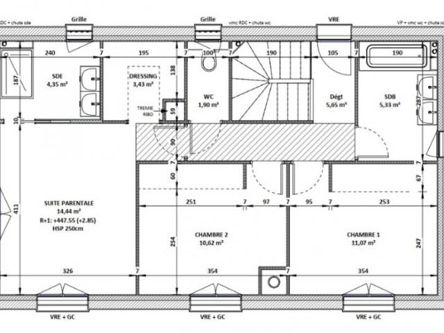
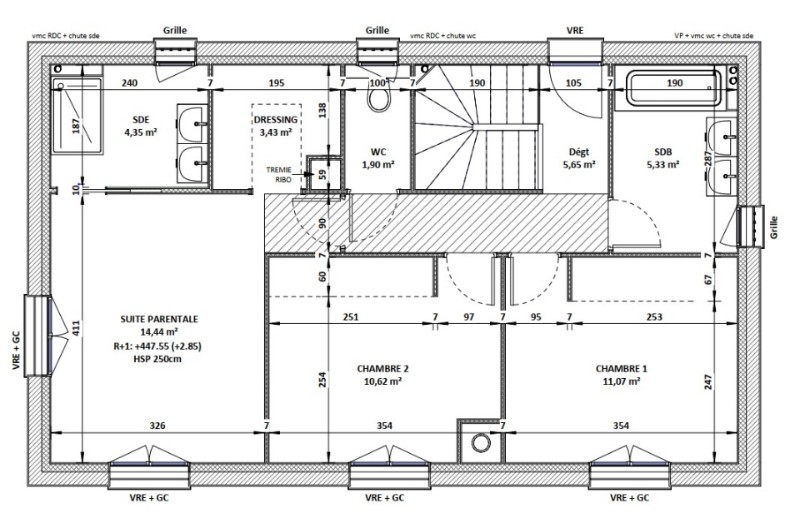
A l'étage : 3 chambres ainsi qu'une grande salle de bains et un autre WC indépendant.

Son prix de vente est de 575 000 € comprenant terrain + villa + terrassement villa et terrain + raccordements complet + murs de soutènement + accès (hors frais de notaire estimé à 16 500 €).

N'hésitez pas à prendre contact avec Mr MOUREY (tél : 06-16-15-21-37)